
Dove comfort e benessere trovano il loro equilibrio
la nuova idea di casa, tra luce, verde e qualità costruttiva.


Interrato
Le soluzioni abitative disponibili
Piano Terra
Piano Primo
Piano Secondo
Attico
Bilocali, trilocali, quadrilocali e attici, tutti con ampie terrazze, logge o giardini privati, box auto e cantina.










Clicca sulle immagini per esplorare gli appartamenti e scoprire la disposizione degli spazi.
Le Case Nove offrono spazi pensati per vivere il comfort dentro e fuori casa.
Terrazze, logge e giardini privati regalano luce, verde e momenti di benessere ogni giorno, in un equilibrio perfetto tra intimità e libertà.



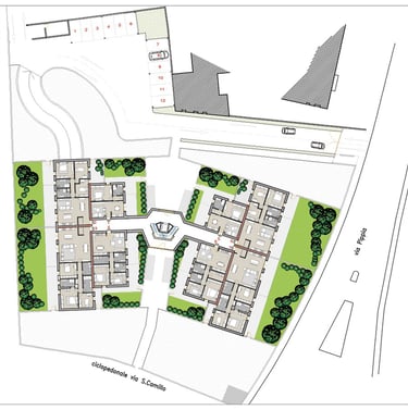
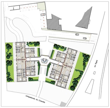
Vicino al centro, lontano dal caos
Le Case Nove sorgono in una posizione ideale, a due passi dal Centro Storico di Cremona, in un’area facilmente raggiungibile e perfettamente collegata alle principali vie di comunicazione.
La zona offre comodità e servizi senza rinunciare alla tranquillità: affacciata su via Pippia, una strada silenziosa e riservata, ma a pochi metri dalla più vivace via Mantova, unisce comfort urbano e qualità della vita.
Piste ciclabili e marciapiedi collegano l’intervento al cuore della città, mentre nelle immediate vicinanze si trovano negozi, scuole e servizi di pubblica utilità, tutto a portata di mano.
Un contesto curato, ben servito e al tempo stesso discreto: il luogo perfetto per vivere Cremona ogni giorno, con serenità e praticità.

Da generazioni il Gruppo Findonati costruisce e valorizza il territorio cremonese, con un impegno fondato su serietà, esperienza e attenzione alle persone.
Con Case Nove nasce un progetto pensato per chi desidera abitare davvero, in un contesto residenziale moderno, accogliente e perfettamente integrato nel tessuto urbano.
La posizione privilegiata, a pochi passi dal Centro Storico, offre tutto ciò che serve per vivere bene: scuole, servizi, aree verdi e spazi di socialità come il Campo Scuola “Amadio Soldi”.
Un luogo ideale per famiglie e per chi sogna una casa che unisca comfort, qualità e valore nel tempo.
Vivere Cremona, nel cuore della città



Le Case Nove nascono con una visione moderna dell’abitare: comfort quotidiano, efficienza energetica e sostenibilità ambientale.
Ogni abitazione è progettata secondo i più elevati standard di Classe Energetica A, grazie a materiali di ultima generazione e impianti tecnologici avanzati che garantiscono benessere, sicurezza e risparmio.
Tecnologia, comfort e sostenibilità
Il sistema di riscaldamento a pavimento collegato al teleriscaldamento, insieme al raffrescamento a split, assicura un clima ideale in ogni stagione.
L’assenza del gas metano e i piani a induzione aumentano la sicurezza e riducono i consumi, mentre l’impianto fotovoltaico da 40 kW alimenta le parti comuni, contribuendo a un futuro più pulito.
Ogni appartamento è dotato delle più moderne predisposizioni: fibra ottica, impianto antintrusione, automazione basculanti, oltre a videocitofono a colori e impianti TV e telefonici evoluti.
Un insieme di soluzioni pensate per vivere meglio, spendere meno e rispettare l’ambiente.

Il progetto Case Nove integra la natura come elemento fondamentale di benessere e qualità abitativa.
Il verde non è solo un elemento estetico, ma una vera e propria barriera acustica naturale, capace di offrire tranquillità e privacy grazie alle sue proprietà fonoassorbenti.
Le ampie aree permeabili e le superfici verdi regolano il microclima, migliorano la qualità dell’aria e contribuiscono a un ambiente più salubre per chi ci vive.
La presenza di piante e giardini favorisce la biodiversità locale e il contatto quotidiano con la natura, migliorando il benessere psicofisico dei residenti.
Inoltre, il verde contribuisce a ridurre l’effetto “isola di calore”, regola l’umidità, assorbe polveri e CO₂ e riduce l’abbagliamento, creando un microclima piacevole e armonioso in ogni stagione.
Un equilibrio perfetto tra natura, architettura e qualità della vita.
Il benessere naturale del verde
Ogni dettaglio delle Case Nove è progettato per offrire comfort, solidità e qualità nel tempo, grazie a materiali di pregio e soluzioni costruttive all’avanguardia.
La struttura antisismica, l’isolamento a cappotto con pannelli alla grafite e la copertura ventilata “Ventilcover” garantiscono efficienza energetica e benessere in ogni stagione.
I serramenti in legno con vetrocamera basso emissivo e tapparelle motorizzate assicurano isolamento e comfort acustico, mentre le pavimentazioni esterne drenanti completano il complesso con sicurezza ed eleganza.
Un insieme di scelte che unisce stile, tecnologia e valore duraturo.
Qualità che si vede e si sente
Gli interni delle Case Nove sono pensati per offrire qualità, armonia e bellezza senza tempo.
Ogni ambiente è curato nei dettagli, con materiali selezionati per garantire comfort, stile e durata.
Le porte interne, a battente o scorrevoli, si distinguono per linee pulite e finiture laccate in tinte raffinate, mentre il portoncino blindato di Classe 3 unisce eleganza e sicurezza con isolamento acustico e dettagli di pregio. I serramenti con vetro ad assorbimento acustico 39 db.
Soglie e davanzali in marmo Botticino, pavimenti in gres porcellanato nella zona giorno e parquet nelle camere da letto creano un equilibrio perfetto tra praticità e calore, con possibilità di personalizzazione della scelta e della posa.
I bagni rivestiti in ceramica smaltata combinano funzionalità e stile, offrendo spazi raffinati e facili da mantenere.
Un insieme di scelte che raccontano un’idea chiara: vivere bene significa circondarsi di qualità autentica.
Eleganza e comfort, ogni giorno


Copyright © 2025 Gruppo Findonati spa. Tutti i diritti riservati.
